Bonyhádi Petőfi Sándor Evangélikus Gimnázium Alaprajz és Épülettörténet
Az 1806-ban Sárszentlőrincen alapított intézmény 1870-ben költözött Bonyhádra.
Az intézmény története szorosan összefonódik a magyarországi felekezeti iskolák múltjával, különösen az 1948-as államosítás kapcsán.
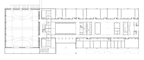
A Bonyhádi Petőfi Sándor Evangélikus Gimnázium államosítási dokumentumai között számos értékes alaprajz, homlokzati rajz és helyszínrajz található, amelyek az iskola épületéről, internátusáról és konviktusáról tanúskodnak.

Az Intézmény Története és Fejlődése
Az intézményt az evangélikus lakosság szándéka szerint 1806-ban alapították Sárszentlőrincen, azzal a céllal, hogy hazafias érzelmű, nyelvben jártas tanítókat képezzenek, és megfelelő műveltséget biztosítsanak a továbbtanulni vágyó ifjaknak.
Az 1790-es években épült, L alakú épület adott otthont az intézménynek, amely 1806 és 1853 között Schola Trivalis, azaz három évfolyamú kisgimnáziumként működött.
Ebben az időszakban az iskola diákja volt az evangélikus Petrovics Sándor, aki később Petőfi Sándor néven vált országosan ismertté.
A korszak neves tanára, Lehr András, 1831 és 1853 között tanított Sárszentlőrincen, és ő ismertette meg a fiatal Petőfit a latin nyelvvel és a klasszikus irodalommal.
A nagy előd tiszteletére a tantestület róla nevezte el a kiemelkedő gimnazisták általános iskolai mentortanárait elismerő díját.
Az intézmény kinőtte a kis falut és az épületet, így felmerült a költöztetés igénye, amelyet 1869-ben hajtottak végre.
1870-ben az iskola a Völgység virágzó központjába, Bonyhádra települt át, ahol jelentős evangélikus lakosság élt.
Az algimnáziummá vált intézmény a mai Bajcsy-Zsilinszky utcai régi épületben kapott helyet, amely 1887-ben nyerte el jelenlegi formáját.
1894-ben adták át Tolna vármegye első tornatermét, amelyet a mai napig is használnak.
Az intézmény centenáriumi ünnepségén elhatározták egy új épület létrehozását a megnövekedett diákság befogadására.
Az első világháború és az azt követő vörösterror több gimnáziumi tanár és diák életét követelte, akiknek emléktáblát állítottak a bejárat mellett.
Ebben az időszakban az intézmény diákja volt Illyés Gyula, aki 1914 és 1916 között tanult itt.
1935-ben átadták az internátus új épületét, amelynek eredetileg tervezett 2 emeletes épületéből csak egy 1 emeletes szárny készült el.
A második világháború után, 1948. június 16-án az intézmény az evangélikus egyháztól állami gimnázium lett.
1949-ben, Petőfi Sándor halálának centenáriuma alkalmából, az intézmény felvette egykori diákjának nevét.
Az állami gimnázium 1992-ben került vissza az evangélikus egyház tulajdonába.
Az épület teljes körű külső felújítása után, 1996-ban, egy új, 160 férőhelyes, modern stílusú kollégiumi szárnnyal bővült az intézmény.
2001-től a gimnázium alapító tagja lett az Arany János Tehetséggondozó Programnak.
2006-ban ünnepelték alapításuk bicentenáriumát, amely keretében számos felújítást, ünnepséget és szoboravatást tartottak.
2014-ben indult az első E osztály, amely biológia-kémia tematikával indult.
2015-től több év alatt felújították az épületek többségét, és emlékműveket, szobrokat avattak.

Az Épületek és Létesítmények
Az intézmény főépülete, az "A" épület, egy nagy méretű, egyemeletes, szecessziós stílusban épült létesítmény, amelynek homlokzata a Kossuth Lajos utcára néz.
Építését 1907-ben kezdték meg, és a következő év szeptemberében adták át.
Az épület terveit Baumgarten Sándor készítette, a kivitelezést pedig egy helyi vállalkozás, Péter Dániel és fiai végezték.
Az épület a város egyik jelképe, és műemléki védelem alatt áll.
Az "A" épületben található az igazgatóság, a tanári terem, a könyvtár, irodahelyiségek, valamint tantermek az alagsorban és az emeleten.
Az emeleten találhatóak a neves öregdiákok emléktáblái, a biológia szaktanterem, a földrajz terem, valamint további tantermek.
A régi gimnázium épülete, a "B" épület, a Bajcsy-Zsilinszky utca felé néz, klasszicista stílusban épült, és jelenlegi kinézetét 1887-ben nyerte el.
Az épület egykori jobb szárnyának helyén 2020-ban jelentős építkezések kezdődtek.
Az udvart és az azt körülvevő épületeket "Bajcsyként" emlegetik az iskolában, amelyek 10 tantermet, a rajz szaktermet és a pince klubot foglalják magukba.
Az épületek szigetelése és tetőcseréje nagyrészt a 2015-16-os tanévben zajlott.

Kollégium
Az intézménynek 1935 óta saját kollégiuma van.
A kollégium régi szárnyát 1935-ben adták át, amely eredetileg 2 emeletesnek épült, de csak az 1 emeletes keleti szárny készült el.
A befejezésre 1996-ig kellett várni, amikor is egy új szárnyat építettek.
A kollégiumban található a konyha, 2 ebédlő, egy porta, egy klubhelyiség, 2 szauna és egy imaszoba.
Minden szinten van teakonyha, hűtőszekrénnyel, mikrohullámú sütővel, ülőhelyekkel és szelektív hulladékgyűjtőkkel.
A kollégium koedukált, a fiúk az alagsorban és az alsó két szinten laknak, a lányokat a régi szárnyban, majd a felsőbb emeleteken helyezik el.
A tanulók mintegy fele, kb. 300 diák kollégista.
A kollégistákat tanulmányi és versenyeredményeik, valamint közösségi munkájuk alapján minősítik.
A kollégisták számára különféle kedvezmények és jutalmak járnak a minősítéstől függően.
A kollégiumban PET-palackgyűjtőket helyeztek el, és szóda csereprogramot is működtetnek.
A kollégiumban "Vacsora másként" elnevezésű közösségi alkalmakat is tartanak, ahol a diákok vacsorát készítenek és tálalnak fel.
Sportlétesítmények
A gimnázium Bonyhádra költözése után szükségessé vált egy tornaterem építése.
Az első tornacsarnokot 1893-ban adták át, amely Tolna vármegye első tornacsarnoka volt.
Az épület 28 m hosszú és 12 m széles volt, és egy 240 m²-es tornacsarnokot, valamint egy 96 m²-es rajztermet foglalt magába.
A tornatermet többször is átépítették, legutóbb 2018-ban újították fel.
A tornaterem egyik oldalán mászófal, mellette pedig egy Takács Károly nevét viselő lövészszoba található.
A növekvő létszám miatt szükségessé vált egy új fedett tornateremre, így megvásárolták a szomszédos ipari csarnokot.
A Bonyhádi Atlétikai Centrum Magyarország második legnagyobb fedett atlétikai csarnoka, ahol számos versenyt és edzőtábort rendeznek.
A csarnokot modern rekortán borítás, lelátó és öltözők teszik teljessé.
A gimnázium és a kollégium közötti területen található futópályát 2006-ban újították fel.
A 3 sávos, 200 m-es futókör a Forberger László nevét viseli.
A futópálya mellett egy modern, rekortán borítású ugrópálya is kialakításra került.
A kollégium és az atlétikai centrum közötti területen egy 1100 m²-es betonozott pálya is található, ahol kispályás labdarúgó tornákat és kültéri rendezvényeket tartanak.
A pálya mellett két röplabdapálya is található.
Elérhetőségek és Dokumentumok
Postacím: 7150 Bonyhád Pf.
Cím: 7150 Bonyhád, Kossuth Lajos u.
Koordináták: 46° 17′ 53″ É. sz. 18° 31′ 56″ K. h.
Az iskolák államosítási okmánytára az oktatástörténeti kutatások értékes forrásai, amelyek nem csupán az egyes településeken lévő, volt felekezeti és községi iskolák állapotáról számolnak be, hanem az adott települések helyzetére, valamint az egyházközségek adottságaira vonatkozóan is értékes tájékoztatást adnak.
Jelzet: MNL TML VI. 501. c. é. sz.
tags: #bonyhadi #petofi #sandor #evangelikus #gimnazium #alaprajz
