Az 1+2 szobás panellakások alaprajzainak fontossága és elérhetősége
Az ingatlanvásárláson gondolkozók hosszasan böngészik a kínálatot, rengeteg hirdetéssel találkoznak. Általánosságban igaz, hogy a sikeres ingatlaneladáshoz ki kell törni ebből a zajból. Ehhez a segítségünkre lehetnek a jó minőségű, látványos képek, az informatív és kedvcsináló leírás, és a gyors, kedves kommunikáció az eladó vagy közvetítő részéről. De legalább ilyen fontos az eladásra szánt ingatlan alaprajza is.
Nemzetközi felmérések azt mutatják, hogy az alaprajz kimondottan fontos a leendő vevőknek. Az amerikai ingatlanosok kereskedelmi szövetsége (National Association of Realtors) egy 2022-es kutatásban azt mérte fel, hogy a fotók és a részletes leírás után az alaprajz a harmadik legfontosabb információ az ingatlant keresőknek. A vevőjelöltek 55%-a szerint nagyon hasznos, ha megtekinthetik online a kinézett ingatlan alaprajzát.

Sokan alábecsülik az alaprajzok fontosságát, pedig ezek a sematikus ábrázolások nélkülözhetetlenek a lakás megismerésében. Érdekes belegondolni, hogy mekkora különbség van egy alaprajz megítélése és jelentősége között. Hiszen sokan nem látnak mást, mint egy végletesen leegyszerűsített “térképet”, ami az ingatlant ábrázolja, viszont számos esetben mégis nélkülözhetetlen információkat tartalmaz.
Lakásunk mindennapi használata során hajlamosak vagyunk megfeledkezni még az alaprajz létezéséről is, hiszen életvitelünket nem befolyásolja, ráadásul a napi teendőink elvégzéséhez sem szükséges. Ugyanakkor az alaprajz fontossága megnövekszik bizonyos helyzetekben:
- felújítás és átalakítás alkalmával.
- ha hitelkérelmet nyújtunk be.
- ha lakásunkat értékesíteni szeretnénk.
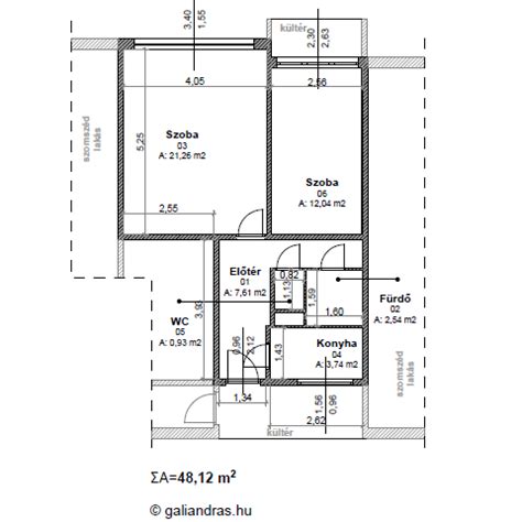
A panellakásokra jellemző, hogy a házgyári jellegük miatt nagy hasonlóságot mutatnak az elrendezésük és beosztásuk kapcsán. Ezért tapasztalhatjuk azt, hogy bizonyos panellakások esetén a szobák elhelyezkedése, a vizesblokkok kialakítása, de még a közlekedők is azonosak. Ez pedig azt is eredményezi, hogy alaprajzok tekintetében viszonylag limitáltak a különbségek, és hatalmas eltérésekkel sem találkozhatunk.
Otthonod eladását tervezed? Budapesten közel 200 000 panellakás épült a múlt század utolsó harmadában, melyek házgyári jellegükből adódóan sokszor nagyban hasonlítanak egymásra. Olyan egységes, földhivatali adatokon alapuló adatbázist építettünk ki, amiből a hirdetők egy kattintással kiválaszthatják a meghirdetett budapesti panellakásuk pontos, arányos alaprajzát. A 2400 alaprajzból álló adatbázis lefedi a budapesti panellakások 99%-át.

Ennek köszönhetően az aktív fővárosi panelhirdetések 45%-ához töltöttek már fel alaprajzot magánszemély hirdetőink. Az eladók, bérbeadók az ingatlan.com-on meghirdetett panelekhez díjmentesen feltölthetik a hozzájuk illő alaprajzot, amit az oldal a megadott paraméterek alapján fel is kínál. A fővárosi panelt hirdetők ezáltal az ingatlan.com-os hirdetéseikhez már díjtalanul hozzáadhatják az előre elkészített, arányos, egységes megjelenésű alaprajzok közül azt, amely a lakásukat legpontosabban bemutatja.
Fontos tudni, hogy ha a hirdető nem találja a lakáshoz tartozó alaprajzot, akkor lehetséges, hogy pontosításra szorulnak az adatok, például a házszám, a lakás alapterülete, a szobák száma és az erkély mérete. A rendszer ugyanis ezek alapján kínálja fel az alaprajz választékot. Továbbá, az alaprajzok a lakások eredeti elrendezését mutatják.
A budapesti lefedettség ugyan jelentős állomás és nagy segítség a fővárosban hirdetőknek, de nem az alaprajz projekt vége. A hazai lakásállomány jelentős hányadát teszik ki a panellakások - összesen 540 ezer ingatlan -, amelyek az egyes lakótelepeken változatos elrendezésben és kialakításban épültek meg. Mint szinte minden esetben a panelokban, itt is a vizesblokk helyzete nagyban meghatározza az irányvonalat, illetve az is szűkíti a lehetőségeket, hogy egy panelház oldalán nem lehet újabb ablakot vágni.
MENNYIBE KERÜL 2025-ben, EGY KOMPLETT PANEL LAKÁS FELÚJÍTÁSA?
A panellakások reneszánszukat élik, egyre népszerűbbek a lakáspiacon. Egy jól felépített, informatív, látványos és szép képekkel kiegészített hirdetés nagy segítségünkre lehet az értékesítés során. Ennek ellenére az ingatlan.com adatai szerint csak a panelhirdetések egyharmadához töltenek fel alaprajzot az eladók. Ez azért jelent problémát, mert sok esetben ezen múlik a lakás sikeres eladása. Sok esetben tapasztalható, hogy bár a fényképek felkeltik a vevők érdeklődését, a lakás megtekintésénél olyan elosztással találkoznak, ami nem felel meg az elképzelésüknek, és csalódottan távoznak. Ez a továbbiakban nem jelent problémát, mert oldalunkon mostantól előre feltöltött sablonképekből tudják kiválasztani a meghirdetett panellakás alaprajzát az eladók.
A szoba bejárati ajtó felőli sarkában az eredeti falat a helyén hagyva kialakíthatunk egy gardróbot, ami így életszerűbben is használható. Mivel a lefolyócső a wc-ben van, azt a helyén kell hagyni, viszont új, tágasabb fürdő kialakítására van lehetőség a konyha helyén. Itt akár egy sarokkád is elfér, amiről az eredeti fürdőszobában álmodni sem lehetett. Így eltávolíthatóak az eredeti gardrób és a fürdő falai, valamint a kisebb szoba előtérrel közös falát is kivehetjük. Tovább növelhetjük a teret a fürdőben, ha a wc falát is áthelyezzük ferde vonalban. Persze a falak megbontása előtt kérjük ki statikus véleményét és szerezzük be a szükséges engedélyeket.

tags: #1 #plusz #2 #fel #szobas #panel
