Könnyűszerkezetes Házak 58 nm Alaprajz Információk
Az építkezés ma már nem feltétlenül jár rejtett költségekkel, elhúzódó átadásokkal, ember- és anyaghiánnyal. A MODULWOOD házak hi-tech építőcsarnokunkban készülnek maximális minőségellenőrzés mellett, teljesen a megrendelőink igényeire szabva. Modern gyártócsarnokunknak köszönhetően akár 6 hónap alatt legyártjuk családi házadat. Házainkat fenntartható építőanyagokból építjük. Alkosd meg saját otthonod konfigurátorunk segítségével! A ModulWood házrendszer bár jogilag könnyűszerkezetes ház, teherhordó és térelválasztó falai mind tömör fából, CLT-ből készülnek. Így a fajlagos súlya megközelíti a hagyományos építőanyagokét, mint az Ytong tégla. A fal tömegéből fakadóan jó hőtároló képessége is van. A teljes ház gyárban készül, és a térmodulokat szállítjuk a helyszínre. A mobilházak többnyire építési konténer méretűek, ugyanis igazodniuk kell a közúti szállítható űrszelvényhez.
Cross Laminated Timber, magyarul Kereszt Ragasztott Fűrészáru, vagyis Rétegragasztott Fapanel. Gyakorlatilag tömör fenyő, mely tartószerkezetként is használható. A 21. századi házépítés piaca új technológiát kíván. A szakember hiány és az alapanyag árak változása olyan kiszámíthatatlanságot jelent a megrendelők számára, ami sokszor megoldhatatlan feladat elé állítja még a tapasztalt építőt is. Design kompromisszumok nélkül. A ModulWood házak küldetése, hogy magas minőségű építészeti részletekkel dolgozik, és így hozzá járul az épített környezet minőségéhez. Csak tiszta geometriákkal dolgozunk így nincsenek műszakilag is problémás tetőmetsződések vagy csüngő ereszek.
Kompakt és Hatékony Térkihasználás
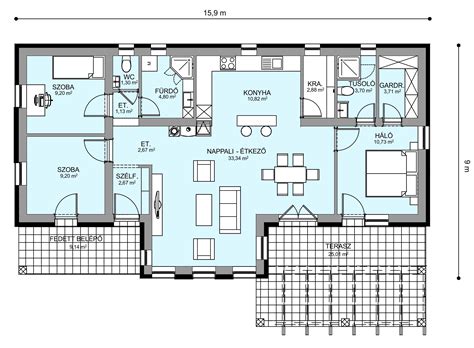
Az A03M típusjelű házunk a legkompaktabb a kész tervként elérhető házaink közül. A földszint alaprajza a következő helyiségeket foglalja magában:
- Szélfogó: 4.08 m²
- Közlekedő: 2.6 m²
- Fürdőszoba: 5.79 m²
- WC: 1 m²
- Kamra: 0.95 m²
- Étkező-Konyha: 14.04 m²
- Nappali: 13.46 m²
- Szoba: 9.94 m²
- Szoba: 9.94 m²
Összterület: 61.8 m². Ez a kompakt elrendezés ideális lehet kisebb telkekre vagy azoknak, akik egy praktikus és könnyen fenntartható otthont keresnek.

ModulWood Házak Előnyei
Azért döntöttünk az ipari előregyártás mellett, mert csak így érhetjük el, hogy minimális hulladékot termeljünk a lehető legkevesebb anyag felhasználásával, nem beszélve az anyagmozgatással járó ökológiai lábnyomról. Nem házat készítünk, hanem Otthont. Látogass el a konfigurátorunkba.
Referenciák és Árak
Több, mint 1000 típustervből választhatsz. Egyedi tervezést is vállalunk - hozott tervekből is építünk. Típusház akció ebben a hónapban! Tekintsd meg hatalmas választékunkat, kedvező árainkat. Lépj most, még az áremelkedés előtt! Ha később építkeznél, semmi gond: bármelyik típustervünket 500.000 Ft-al lefoglalhatod, és mi 12 hónapig garantáljuk az árat.
Néhány példa a kínálatból:
- Majoranna: Nettó ár: 57 950 000 Ft, Bruttó alapterület: 100 m²
- Vitalis Energy: Akciós ár: 53 320 000 Ft, Bruttó alapterület: 100 m²
- NMTK-069: Nettó ár: 57 950 000 Ft, Bruttó alapterület: 100 m²
- Berkenye IV: Nettó ár: 59 990 000 Ft, Bruttó alapterület: 101 m²
- Gyál: Nettó ár: 59 990 000 Ft, Bruttó alapterület: 101 m²
- Eco Plus Smart: Nettó ár: 59 990 000 Ft, Bruttó alapterület: 101 m²
- Panoráma Rezidencia: Nettó ár: 59 990 000 Ft, Bruttó alapterület: 101 m²
- Peremizs: Nettó ár: 59 990 000 Ft, Bruttó alapterület: 102 m²
- Strawberry: Nettó ár: 59 990 000 Ft, Bruttó alapterület: 102 m²
- Artemisz Lapos: Nettó ár: 59 990 000 Ft, Bruttó alapterület: 102 m²
- Artemisz Magas: Nettó ár: 59 990 000 Ft, Bruttó alapterület: 102 m²
- Nineveh: Nettó ár: 59 990 000 Ft, Bruttó alapterület: 102 m²
- Universal F-design: Nettó ár: 59 990 000 Ft, Bruttó alapterület: 102 m²
- Héliosz Lapos: Nettó ár: 59 990 000 Ft, Bruttó alapterület: 103 m²
- Héliosz Magas: Nettó ár: 59 990 000 Ft, Bruttó alapterület: 103 m²
Könnyűszerkezetes családi házaink kulcsrakészen már 479.000 Ft/nm ártól elérhetőek, akár 4 hónap kivitelezési idővel, országosan. Energiahatékony könnyűszerkezetes házak építése - fa és fém szerkezetekből - AAA panaszmentességi igazolással.
Pillérek és Előnyök
Négy pillérünk:
- Kockázatmentes építkezés: Előre kalkulálható, fix ár, fix határidő, fix feltételek.
- Egy kézben a teljes folyamat: Mindent mi intézünk. Valóban kulcsrakész generálkivitelezés, igény szerint tervezéssel, bútorozással, hitelügyintézéssel, sőt, akár telekkel együtt.
- Legnagyobb választék: Több, mint 1000 típusterv, 8 féle építési technológia, testre szabható műszaki tartalom.
- Csodálatos otthonok kiváló árakon: Megbízható cég. Erős piaci szereplők vagyunk, AAA kategóriás panaszmentességi igazolással - nyugodt építkezés garancia. Stabil pénzügyi háttér, élőben is megtekinthető, valós referenciák.
A 9 órás folyamat: velünk építkezni olyan egyszerű és gyors, hogy a személyes idődből 9 óránál többet nem vesz el az egész családi ház építés. Csak kiválasztod a házat, elmondod nekünk az igényeid, és mi mindent intézünk: a tervezéstől a kivitelezésen át egészen a hiteledig. Kiváló árak: harcba szálltunk a 2 millió forintos négyzetméter árak, a penészes, süllyedő és túlárazott használt ingatlanok ellen. Velünk kiváló áron gyönyörű, új Imperial álomotthonod lehet, mindössze néhány hónap alatt. Ha az általunk épített házat azonnal eladnád, átlagosan 24-29%-ot kereshetnél rajta, ennyi pénzt teszünk a zsebedbe. 100 nm-es családi ház esetén megspórolhatsz velünk akár 24-28 millió forintot. Nem aprópénz, igaz? Számolj utána - kijön a matek! Az átlagos kulcsrakész építési idő 5-8 hónap. Szemben a piaci átlaggal - ami legalább másfél év.

Miért Válasszon Minket?
- Kiváló minőség - nyugodt építkezés garanciával tanúsítva
- Elérhető ár - már 479.000 Ft/nm ártól
- Gyors kivitelezés - akár 4 hónap alatt kulcsrakész
- Árgarancia
- Energiahatékonyság
- Előre kiszámítható ár és határidő
- Tőkeerős háttér
- ÉMI/ÉME engedélyes rendszerek
- Közel 1000 típustervből választhatsz előre kalkulálható áron
- Gyors, ingyenes ajánlat - általában 48 órán belül
- Felelősségvállalás - biztosítással
- Hatalmas tapasztalat - 1988 óta építünk
- Mérnöki tudás - minden építkezésünket mérnök vezeti
- Több, mint 300 megépített családi ház az elmúlt 10 évben
- Élőben megtekinthető referenciák az ország számos pontján
- Hitel és CSOK ügyintézésben segítünk - OTP Pénzügyi Pontként
- Nincs még telked? Ebben is segítünk!
Házépítési Technológiák és Árak
A hagyományos tégla-beton technológiánál a könnyűszerkezetes ház sokszor:
- Gyorsabb
- Olcsóbb
- Azonos területre a kisebb bruttó-nettó különbség miatt nagyobb ház építhető
- Tetőtér-beépítéseknél a kisebb önsúly miatt sokszor nem szükséges statikai megerősítés, egyszerűbb a függőleges anyagmozgatás
- Katasztrófaálló
- Korszerű
- Környezetbarát
- Alacsony energiaigényű, akár passzívház is építhető belőle
- Tartós
- Emeletes ház is építhető belőle
- Moduláris, gyorsan átalakítható
- Mobilházak, ideiglenes építmények létesítésére is alkalmas
- Kellemes mikroklímát biztosít, allergiamentes vagy azzá tehető
Fémvázas technológiánk csarnokok, raktárak, üzemek építésére ideális. Nagypaneles építésre is lehetőséget ad. Minden technológiánk ÉMI minősített.
Alkalmazott technológiáink:
- Danish Fabrik könnyűszerkezetes előregyártott nagypaneles technológia
- Acélvázas és favázas könnyűszerkezetes házakat is építünk, valamint dolgozunk SIP és CLT gerendaház technológiával is.
A könnyűházak, könnyűszerkezetes házak jellemző szerkezetkész négyzetméter ára a bruttó négyzetmétert alapul véve kevesebb, mint 238.000 Ft/nm. A kulcsrakész ár a belső tartalom, az igények függvényében egy szerény műszaki tartalommal lehet akár 479.000 Ft/nm, de egy mobilházat, konténerházat meg tudunk építeni kulcsrakészen, szerény belső műszaki tartalommal akár 420.000 Ft/nm áron is.
Ár- és Műszaki Összehasonlító Táblázat
| Állapot/Technológia | Alap | Közép | Prémium | Danish Fabrik |
|---|---|---|---|---|
| Szerkezetkész | 248.780 Ft/nm | 306.050 Ft/nm | 352.000 Ft/nm | 249.260 Ft/nm |
| Fűtéskész | 467.700 Ft/nm | 575.400 Ft/nm | 661.664 Ft/nm | 468.600 Ft/nm |
| Kulcsrakész | 497.560 Ft/nm | 612.100 Ft/nm | 703.900 Ft/nm | 498.520 Ft/nm |
Amit a könnyűszerkezetes épületekről tudni kell
Az építész tervezés során fontos, hogy a Megbízó számára vizualizáljuk a leendő épület terveit, hiszen legyen szó akár családi házról vagy weekend házról, akár többlakásos társasházról vagy bármilyen egyéb épületről, a képi megjelenítés sokkal több fogódzót, támpontot ad a további munkához, mint egy profi, de a laikusok számára nehezen átlátható műszaki tervrajz.

tags: #5 #8 #meteres #konnyuszerkezetes #haz #alaprajz
