60 nm-es Ház Tervek: Egyszerűség és Funkcionalitás
Családi ház alaprajz érdekel? A legjobb helyen jársz! Nézz szét nálunk és válaszd ki számodra a legmegfelelőbbet.
Intelligens keresőnket úgy alkottuk meg, hogy a lehető legtöbb opció közül tudj választani gyorsan és egyszerűen. Szűrést tudsz végezni a beépítési módra, a szobák számára, alapterületre, fürdőszoba számára, garázsra és az egyéb helyiségekre is.
Nagy előnye az oldalunknak, hogy családi ház alaprajz keresését, akár egyedi igények alapján is le tudod szűrni. Ilyen például az elkülönített konyha, ami azt jelenti, hogy a nappali és a konyha el van választva. Tudsz még keresni az elkülönített szülői hálóra is, ami azt jelenti, hogy a gyerek szobák és a szülői szoba a lehető legtávolabb vannak egymástól, illetve külön tudsz keresni arra is, hogy a szülői hálóból nyíljon a fürdő és a gardrób is.
Egyedülálló módon tudsz nálunk a hosszú és a rövid oldalra is szűrni, így a telek szélessége és hosszúsága sem lehet akadálya annak, hogy megtaláld nálunk a megfelelő családi ház alaprajzot.

Ennek ellenére léteznek olyan építési telkek, amire egyik alaprajzunk sem megfelelő, illetve lehet olyan egyedi igényed, amivel nem találkoztál a házterveink között. Szerencsére nálunk van lehetőség teljesen egyedi terv készítésére is, hiszen ha minket választasz, akkor az ingyenes családi ház tervezés az alap csomag részét fogja képezni.
Az itt található alaprajzok és családi ház tervek alkalmasak lehetnek arra, hogy megtudjuk milyen irányba szeretnél elmenni, de a végleges tervek elkészülésének alapja mindenképpen a te saját, egyedi igényeid, a helyi építési szabályzat és az építési telek tulajdonságai lesznek.
Az Egyszerű Ház Alaprajz Előnyei
Sokan úgy vannak a háztervezés fázisában, hogy nem kell túlbonyolítani semmit. Mindenki tudja, hogy minél különlegesebb az alaprajz és minél több “extrára” van igényünk, annál mélyebben a pénztárcánkba kell nyúlni, illetve annál több ideig tart a legtöbb esetben a téglaház felépítése. Pontosan ezért lehet egyre többet hallani azoktól, akik házépítésen gondolkoznak, hogy “én csak valami egyszerűt szeretnék”.
Na miben is nyilvánul meg egy egyszerű ház alaprajz? Legfőképp abban, hogy letisztult, legtöbb esetben téglalap, vagy ahhoz hasonló alaprajzú. Így pedig az alap lefektetésétől kezdve, a főfalak felhúzásán át, a tető befedéséig minden egyes fő folyamat könnyebb lesz, ami pénzt, de legfőképp időt tud nekünk spórolni.

Méret és Funkció: Az Egyszerű Házak Jellemzői
A félreértések elkerülése végett az egyszerű ház alaprajz nem egyenlő a kicsi, 50 nm-es házzal. 60-tól egészen 110 négyzetméterig található egyszerű ház a mi alaprajzaink között.
Az egyszerűségét adja még az ingatlan esetén az is, hogy nem tartozik hozzá garázs. Azért valljuk be, hogy ez is tudja felfelé nyomni a ház árát és sokaknak nincs is rá annyira szüksége, mivel egy fedett kocsibeálló is bőven kielégíti az igényeiket.
Fontos még megjegyezni, hogy a szobák száma sem befolyásolja a ház egyszerűségét, ugyanis a terveink között találhatók 3, 4 és 5 szobás otthonok is. Sőt a különböző kisebb helységek, mint például a kamra, gardrób, háztartási helység sem teszi a házat egyszerűbbé, vagy éppen bonyolultabbá.
Összességében tehát elmondható, hogy a négyzetméter szám, valamint a szobák száma sem mérvadó a tekintetben, hogy egyszerű épületről beszélünk-e vagy sem.
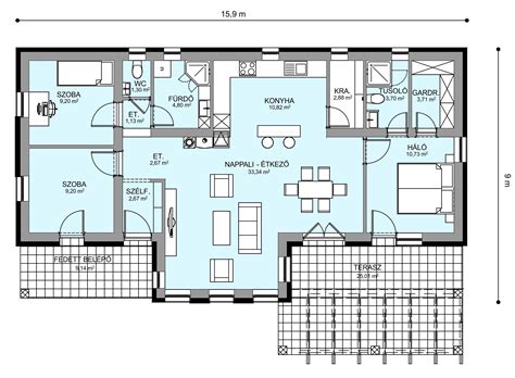
OT-118 - háztervek
Viszont akinek nem egy giccses, egyedi ház felépítése a célja, annak nyugodt szívvel tudjuk ajánlani bármelyik alaprajzot az egyszerű házaink közül.

tags: #60 #negyzetmeteres #keszhaz #tervek
