Eladó ingatlanok Rátóton: Családi házak és lehetőségek
Rátót egy csendes, Vas megyei falu, amely ideális választás lehet azoknak, akik a természetközeli életet keresik. A településen eladó ingatlanok széles skálája található, beleértve családi házakat, telekeket és egyéb építményeket, melyek számos lehetőséget kínálnak a jövőbeni tulajdonosok számára.
Rátót, mint ideális lakóhely
Rátót elhelyezkedése rendkívül kedvező. Az osztrák határtól mindössze 10 perces autóútra található, Szentgotthárd pedig alig 15 percnyire helyezkedik el. Ez ideálissá teszi az ingázást vagy a határmenti munkát tervezők számára, valamint azoknak, akik osztrák vendégkörrel terveznének dolgozni.
A falu főutcáján, szemben a futball pályával és pár perc sétára a falu központjától találhatóak az ingatlanok, így a megközelíthetőség kiváló.

Különleges befektetési lehetőség: A korábbi napközi otthon
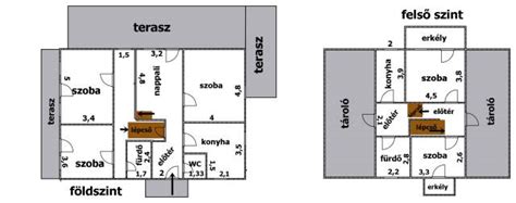
Kiemelt ajánlatként szerepel egy nagyméretű, felújítandó ingatlan Rátót községben, hatalmas területtel. Ez a korábbi napközi otthon kiválóan alkalmas akár óriási családi háznak, vendéglátó egységnek vagy üzlethelyiségnek is, a vevő igényei szerint.
A 275 nm-es épülethez összesen 4510 nm terület tartozik, 2 helyrajzi számra felosztva. Az összközműves épület jelenleg 20 helyiségre van tagolva, amit kreatív fantáziával alakíthat majd a vásárló szobákká, étkezővé, közösségi térré, akár két generációs otthonná is.

További eladó ingatlanok Rátóton és környékén
A megveszLAK.hu portálon további ingatlanok is megtalálhatók Rátóton és a környező településeken. Ezek között szerepelnek felújítandó és felújított családi házak, eltérő méretű telkekkel és szobaszámokkal.
Például, Rátóton kínálnak eladásra egy 80 m²-es, 2 szobás felújítandó családi házat 12 000 000 HUF áron, 1200 m²-es telekkel. Egy másik ajánlat egy 64 m²-es, 2 szobás, teljes körűen felújított családi ház Rátóton, 2452 m²-es telekkel, szintén 12 000 000 HUF áron.
Az Ingatlantájolón szűkíthető a keresés a kategória típusára, például lakás, ház, házrész, telek, valamint az árra, szobaszámra, az ingatlan állapotára. Rátót városrészeire is szűrhetünk, ha rendelkezésre állnak ilyen adatok.

Mit érdemes tudni az eladó rátóti ingatlanokról?
- Családbarát környezet: Rátót ideális választás lehet családok számára, akik a nyugodt, természetközeli életet keresik.
- Tágas telkek: A kerttel rendelkező házak itt jellemzően tágasabbak, megfizethető áron.
- Felújítási potenciál: Számos ingatlan kínál lehetőséget a saját igények szerinti átalakításra és felújításra.
- Kiváló megközelíthetőség: A falu jól megközelíthető, közel az osztrák határhoz.
Lehetőségek a telek hasznosítására
Egy másik, különleges ajánlatként szerepel egy ingatlan Rátót egy csendes mellékutcájának utolsó házaként, közvetlenül egy gyümölcsös mellett. Ez az ingatlan biztosítja a zavartalan nyugalmat és a természet közelségét.
A telek mérete 1437 m², amely ideális teret biztosít az átalakításokra és bővítésekre. Az épület nettó alapterülete 104 m², rendelkezik víz- és villanybekötéssel. Az udvaron található egy masszív pajta és egy melléképület is, amelyek sokféle lehetőséget rejtenek magukban - akár tárolásra, műhelyként való hasznosításra, vagy akár vendégházként való átalakításra is kiválóan alkalmasak.

Hitelre is megvásárolható ingatlanok
Az ingatlanok akár hitelre is megvásárolhatók, ebben is segítséget nyújtanak az ügyfeleknek.
Tura csendes környékén családiház eladó
Az Ingatlantájolón könnyen böngészhet az otthonából, kényelmesen, és felveheti a kapcsolatot az eladóval, vagy kereshet Ingatlanközvetítőt Rátóton, vagy annak közelében.
