Eladó lakás az Almássy telepen: Lehetőség befektetőknek és új otthonra vágyóknak
Az Almássy lakótelepen kínálnak eladásra egy 50 nm-es, 2 szobás lakást, amely a harmadik emeleten helyezkedik el. Ez az ingatlan jelenleg felújítandó állapotban van, de azonnal költözhető, és ideális választás lehet azok számára, akik saját ízlésük szerint alakítanák ki otthonukat, vagy befektetési céllal vásárolnának.
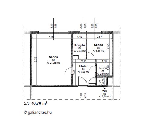
A lakás elrendezése praktikus: a szobák külön nyílnak, ami biztosítja a privát szférát. A konyha tágas, lehetőséget ad a kényelmes főzéshez és étkezéshez. A fürdőszoba zuhanykabinos, és külön helyiségben található a WC, ami növeli a komfortérzetet.
Az ablakok újak, műanyag hőszigetelt kivitelűek, és mindenhol redőnnyel, valamint szúnyoghálóval vannak felszerelve, így biztosítva a csendet, a biztonságot és a kellemes hőmérsékletet. A fűtésről a távhőszolgáltató gondoskodik radiátoros hőleadással, míg a meleg vízről egy saját, 120 literes villanybojler felel.
A lakás fenntartási költsége rendkívül alacsony: a közös költség mindössze 6360 Ft havonta. A közlekedőben több beépített szekrény is található, amelyek bőséges tárolóhelyet kínálnak ruhák, cipők és egyéb tárgyak számára.

Az ingatlan elhelyezkedése kiváló: a környék csendes zöldövezet, ahol játszótér, boltok és iskola is található a közelben. A buszmegálló csupán néhány lépésre van, így a tömegközlekedés is könnyen elérhető. A parkolás az épület körül ingyenes, ami további kényelmet jelent az ott lakók számára.
Az Almássy lakótelep infrastruktúrája és az ingatlan adottságai miatt ez a lakás befektetésnek is kiváló lehetőség. Felújítást követően akár azonnal bérbe is adható, így potenciálisan stabil bevételi forrást jelenthet.
Az eladási irányár 23,9 millió forint. Ha felkeltette érdeklődését ez a lehetőség, érdemes felkeresni az irodát, ahol ingyenes, személyre szabott hitelügyintézéssel is állnak az érdeklődők rendelkezésére.
Lépj Be! Modern Ház Érden–Lejtős Telek Panorámás Otthon–Fazekas Miklós építész, fm-epulettervezes.hu

Összefoglalva az ingatlan főbb jellemzői:
- Almássy lakótelep
- 50 nm alapterület
- 2 szoba
- 3. emelet
- Felújítandó állapot, azonnal költözhető
- Dél-Nyugati tájolás
- Külön nyíló szobák
- Tágas konyha
- Külön fürdő és WC
- Új műanyag hőszigetelt ablakok redőnnyel, szúnyoghálóval
- Távfűtés radiátorokkal
- 120 l-es villanybojler
- Alacsony fenntartási költség (közös költség: 6360 Ft/hó)
- Beépített szekrények a közlekedőben
- Csendes, zöldövezeti környezet
- Játszótér, boltok, iskola a közelben
- Buszmegálló a közelben
- Ingyenes parkolás az épület körül
- Befektetésre is kiváló
tags: #almassy #telep #elado #lakas
