Engedélyezési Tervdokumentáció: Tudnivalók és Követelmények
Az építészeti tervdokumentáció elkészítése minden új építés vagy bővítés során elengedhetetlen. A jogszabályok előírják a tervdokumentáció meglétét, amely biztosítja a megrendelő és a kivitelező közötti hatékony kommunikációt, rögzítve mindkét fél elvárásait és igényeit.
Az engedélyezési tervdokumentáció az építési hatóság által kiadott építési engedély alapját képezi. Ennek pontos tartalmát és követelményeit a 312/2012. (XI. 8.) kormányrendelet szabályozza. Fontos megjegyezni, hogy családi házak építése vagy bővítése esetén gyakran nem építési engedélyre, hanem egyszerű bejelentésre van szükség, amelyhez szintén elengedhetetlen az engedélyezési tervdokumentáció.
Az engedélyezési terv alapvetően építészeti és szakági munkarészekből áll. A szakági munkarészek tipikusan a statika, gépészet és elektromos tervek, de a projekt komplexitásától és méretétől függően további szakágak, mint tűzvédelem, lifttervezés, kerttervezés vagy konyhatervezés is beépülhetnek.

Az Engedélyezési Tervdokumentáció Tartalma
Bár az engedélyezési tervdokumentáció elsőre teljes körűnek tűnhet, gyakran felmerülnek olyan kérdések a kivitelezés során, amelyekre nem ad választ. Ezt a hiányosságot hivatott orvosolni a kivitelezési dokumentáció, amely az engedélyezési dokumentációnál jóval részletesebb.
A kivitelezési tervek tartalmát a 191/2009. (IX. 15.) Kormányrendelet szabályozza. Fontos tudni, hogy a kiviteli terv készítése nem minden esetben kötelező, ellentétben az engedélyezési tervekkel. A kiviteli terv az engedélyezési tervdokumentációhoz hasonlóan építészeti és szakági tervekből tevődik össze, és minden olyan építészeti és szakági utasítást, valamint tervrajzot tartalmaz, amely az épület megvalósításához szükséges.
Összességében elmondható, hogy a szükséges tervdokumentáció fajtáját részben a jogszabályi előírások, részben pedig a megrendelői igények határozzák meg. Az építési előírások folyamatosan változnak, ezért mindig az aktuális jogszabályoknak megfelelő dokumentációt kell elkészíteni.
Az Országos Építészeti Tervtanács (OÉT) Véleményezési Eljárása
Az Országos Építészeti Tervtanács (OÉT) az építési és örökségvédelmi hatósági engedélyezési eljárást megelőzően tervtanácsi véleményezést folytat le a tervdokumentációval kapcsolatban. Ennek részletszabályait a 283/2024. (IX. 30.) Korm. rendelet, valamint a magyar építészetről szóló 2023. évi C. törvény (Méptv.) írja le.

Az OÉT véleményezi:
- a nemzeti emlék körébe tartozó műemlékkel és annak telkével kapcsolatos építésügyi és örökségvédelmi hatósági engedélyezési eljárást megelőzően az engedély iránti kérelem kötelező mellékletét képező építészeti-műszaki dokumentációt;
- a kiemelten közérdekű beruházások épületeinek építészeti-műszaki dokumentációját;
- a kiemelt nemzeti emlékhely és településkép-védelmi környezetének településkép védelméről szóló kormányrendeletben meghatározott esetekben az építészeti-műszaki dokumentációt;
- a nemzeti emlékhellyel kapcsolatos építésügyi és örökségvédelmi hatósági engedélyezési eljárást megelőzően az engedély iránti kérelem kötelező mellékletét képező építészeti-műszaki dokumentációt;
- az állami építési beruházások rendjéről szóló törvény szerinti állami magasépítési beruházás esetében az építészeti-műszaki dokumentációt, ha az építési tevékenységgel érintett vagy annak eredményeként létrejövő épület hasznos alapterülete meghaladja az 5000 négyzetmétert;
- ha az építési tevékenységgel érintett vagy az annak eredményeként létrejövő legalább hat rendeltetési egységből álló lakó, üdülő és szállás jellegű rendeltetésű egy vagy több épület egy építési telken az 1500 négyzetméter összes hasznos alapterületet meghaladja;
- azokat az eljárásokat, amelyek tekintetében e törvény felhatalmazása alapján kiadott kormányrendelet véleményezőként jelölte ki az OÉT-et.
Az OÉT megvizsgálja és elbírálja a területi építészeti tervtanács véleménye ellen benyújtott kifogást. Egyes kiemelt beruházások építészeti-műszaki dokumentációját az építési engedély iránti kérelem benyújtása előtt meg kell küldeni az Országos Építészeti Tervtanácsnak.
A Tervdokumentáció Tartalma és Benyújtása az OÉT-hez
Az eljárás az ÉTDR felületén kezdeményezhető. A Kormányrendelet általánosan meghatározza a tervtanácsok elé benyújtandó tervdokumentáció kötelező tartalmi elemeit. Ezen felül az Országos Építészeti Tervtanácshoz további kiegészítő munkarészek feltöltése szükséges.

Javasolt összeállítás a feltöltésre szánt munkarészekről:
- Jelentkezési adatlap
- Illusztrált vezetői összefoglaló
- Tervtanácsi vélemény alapján módosított terv esetén képekkel illusztrált tervezői válasz
- Releváns tervlapokból egybefűzött tervdokumentáció (Műszaki leírás, helyszínrajzok, alaprajzok, metszetek, homlokzatok, fotódokumentáció, tömegvázlatok, látványtervek)
- Szakmai konzultációról készült emlékeztető, tervtanácsi vélemény, főépítészi vélemény (ha rendelkezésre áll)
- Szerzői Jogi és Összeférhetetlenségi Nyilatkozat (ennek hiányában az OÉT a véleményezési eljárást nem folytathatja le)
- Az építészeti-műszaki tervtanácshoz általánosan benyújtandó építészeti-műszaki dokumentáció minden munkarésze külön, pdf formátumú fájlokban.
További benyújtandó munkarészek lehetnek:
- Műemléki érintettség esetén: műemléket érintő terv esetén az örökségvédelmi szakértő szerv által jóváhagyott tudományos dokumentáció, értékleltár, valamint szakértői javaslat; műemléki jelentőségű területen hatásvizsgálat; műemléki környezet esetén a műemlékkel való megjelenés bemutatása.
- Világörökségi vonatkozású munkarészek: világörökségi terület, világörökségi várományos terület vagy Világörökségi Várományos Helyszínek Jegyzékében szereplő terület érintettsége esetén a dokumentációnak tartalmaznia kell a világörökségi kezelési tervnek, ennek hiányában a világörökségről szóló törvényben szereplő követelményeknek való megfelelés bemutatását, valamint látvány- és sziluettvizsgálatot.
- A 65 métert meghaladó épület esetén a tervezéssel érintett teleknek a 2 km sugarú környezetéhez való illeszkedését igazoló leírás, a szomszédos építményekre gyakorolt benapozási és árnyékvizsgálat, a közlekedési munkarész, valamint a világörökségi területet érintő esetben a kiemelkedő egyetemes érték megóvására irányuló követelményeknek való megfelelés bemutatása.
A fentiek alapján összeállított dokumentációt a meghirdetett ülésnapok előtt 9 nappal kell feltölteni az ÉTDR rendszerben.
Az Épületvillamos Kiviteli Terv
A szakszerű, átgondolt épületvillamos terv alapján történő kivitelezés biztosítja az építtető érdekeinek érvényesülését, a lakóépület tartós működését, gazdaságos fenntartását és a tulajdonosi elvárások teljesülését.

A kiviteli tervet a vonatkozó 266/2013. (VII.11.) kormányrendelet értelmében csak a Magyar Mérnöki Kamara névjegyzékében szereplő, érvényes jogosultsággal rendelkező villamosmérnök tervező készítheti el. A tervező mérnök közreműködése nemcsak a jogszabályok betartása és az áramszolgáltatói hálózatra csatlakozás követelményei miatt fontos, hanem azért is, mert a tervezési díj sokszorosan megtérül egy gazdaságos, biztonságos, fejleszthető és jó minőségű épület megvalósításával.
A tervdokumentáció tartalmát a 191/2009. (IX.15.) Kormányrendelet rögzíti, amely formai és tartalmi követelményeket is tartalmaz. A dokumentációt címlappal, aláírólappal, tartalomjegyzékkel és tervjegyzékkel kell ellátni. A dokumentáció része a szakági tervezői nyilatkozat is, amely tartalmazza, hogy a kiviteli terv az építési engedélyezési tervvel összhangban van, vagy attól mennyiben tér el.
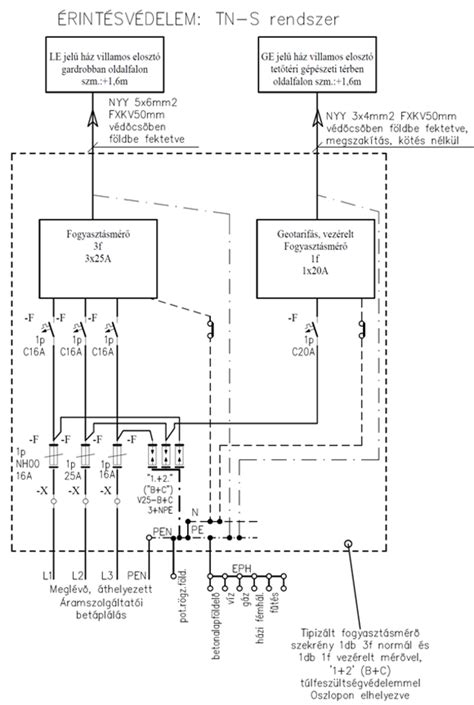
A villamos szakági műszaki leírás tartalmazza a villamos berendezés kialakításának fő elveit és az épület villamos felszereltségének részleteit. A villamos kiviteli tervdokumentáció a műszaki leíráson kívül méretarányos tervrajzokat tartalmaz az épület valamennyi szintjének, valamint az épületen kívüli, a tervezés tárgyát képező területnek erősségáramú és gyengeáramú villamos berendezéséről, hálózatáról is.

A tervnek tartalmaznia kell a külső és belső villámvédelemre, túlfeszültségvédelemre vonatkozó megoldásokat, rajzokat, leírásokat. A gyengeáramú (informatikai) rendszerek elvi kialakítását rendszerenként blokkvázlat szerű sémákkal, ezek készülékeinek alaprajzi megjelölésével, fő nyomvonalaival kell elkészíteni.
A fentiekben meghatározott tervtartalmakra műszaki és mennyiségi adatokat tartalmazó tételes költségvetési kiírást kell készíteni. Árazott költségvetés a kötelezően szolgáltatandó költségvetési kiíráshoz külön megrendelésre készül.
tags: #cctv #engedelyezesi #terv
