Bacsó Béla lakótelep: Otthonteremtés a zöldövezetben
A Bacsó Béla lakótelep egy olyan hely, ahol minden korosztály megtalálhatja a számára kedvező lakhatást, és ahol a természet közelsége kellemesebbé teszi a mindennapokat. Ez a lakótelep nem csupán lakóhely, hanem egy összetartó közösség otthona, ahol a lakók aktívan részt vesznek a közös programokban és élvezik a számos zöld területet.
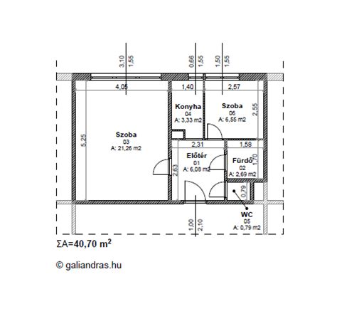
Ingatlan kínálat és adottságok
A Bacsó Béla lakótelepen eladó egy földszinti, 2 szobás, 62 m2-es lakás. A lakás fűtéséről és melegvíz-ellátásáról egy modern kondenzációs gázkazán gondoskodik radiátoros hőleadókkal. Az épület falazata 50 cm vastag, így külső szigetelése nem indokolt. Az ablakok fa thermo kivitelűek, részben redőnnyel felszereltek.
A lakás biztonságát két bejárati ajtó szavatolja, mindkettő biztonsági ajtó. A villany- és vízvezetékek teljes cseréje megtörtént, biztosítva a modernizált infrastruktúrát. A lakáshoz egy 13 m2-es pince is tartozik, amely további tárolási lehetőséget nyújt.

Környezet és életminőség
A lakótelepen 3 szinten összesen 9 lakás található, és a lakóközösség összetartó és barátságos. A hátsó bejárati ajtóhoz kapcsolódóan egy 80 m2-es kis zöld terület saját használatra való rendezése folyamatban van az önkormányzatnál. Ez a terület ideális lehet pihenésre, kikapcsolódásra vagy akár kiskert művelésére.
A lakástól mintegy 100 méterre egy 500 m2-es kis telek bérelhető, melynek éves bérleti díja mindössze 13.000 Ft. A bérleti jog elvileg átruházható az önkormányzatnál, ami további lehetőségeket nyit meg a lakók számára.

A garázsbérlés lehetősége is adott havi 25.000 Ft ellenében, ami praktikus megoldást kínál az autó tárolására.
Közösségi élet és rekreáció
A Bacsó Béla lakótelepen kiemelten fontos a közösségi élet és a szórakozási lehetőségek biztosítása. A lakóközösség nagyon összetartó, és számos közös programot szerveznek, amelyeken bárki részt vehet. Ezek a programok erősítik a kapcsolatokat és hozzájárulnak a kellemes lakókörnyezethez.
A lakótelep rendelkezik egy futballpályával, egy kosárlabda pályával és egy EU-s szabványoknak megfelelő gyermek játszótérrel, így a sportolási és kikapcsolódási lehetőségek széles skálája áll rendelkezésre. Az óvoda közelsége pedig a kisgyermekes családok számára teszi vonzóvá a környéket.

A lakótelep környékén rengeteg a zöld terület, ami nemcsak esztétikailag teszi vonzóvá a környéket, hanem hozzájárul a friss levegőhöz és a nyugodt életérzéshez is. A természet közelsége és a kiváló infrastrukturális adottságok együttesen teszik ideálissá a Bacsó Béla lakótelepet otthonteremtésre.
tags: #tata #bacso #bela #lakotelep #terkep
