Eladó Családi Ház Üröm Táborföldi Lakóparkban
Ismét nyárias, vidám fotók következnek, na megy egy rakás részlet a 310 milliós, eladó ingatlanról, amelyre a nyitókép harsány színei miatt kattintottunk rá. Tél, ide vagy oda, a szemet vonzó fotó egész évben jól működik. Bár mi hozzáadnánk egy havas verziót is a hirdetéshez, nincs okunk panaszra, a tulajdonosok szép munkát végeztek a „kampányukhoz”.
Üröm Táborföldi lakóparkban eladásra kínálunk egy 310 nm-es Nappali+4 szobás, duplagarázsos önálló családi házat 1 166 nm-es telekkel. Az ingatlan 2006-ban épült mediterrán stílusban a kor legmodernebb technológiájával, 38-as porotherm 10 cm szigeteléssel, fa-thermo nyílászárókkal.

Az Ingatlan Elrendezése
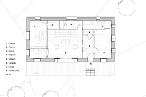
Földszint (140 nm)
- Előszoba
- Vendég WC
- Gardrób
- Nappali-konyha-étkező tér (egyben, esztétikai elválasztással)
- Két további hálószoba (vendég- vagy dolgozószobaként funkcionálhatnak)
- Duplamosdós, kádas és zuhanykabinos fürdőszoba
Emelet (66 nm)
- Két gyerekszoba
- Gardrób a két gyerekszoba között
- Fürdőszoba káddal és zuhanyzási lehetőséggel

Az ingatlan 310 nm-es lakóterülettel rendelkezik, melyhez 1 166 nm-es telek tartozik. A ház 2006-ban épült mediterrán stílusban, a kor legmodernebb technológiáját felhasználva. Falazata 38-as porotherm, 10 cm-es szigeteléssel, az ablakok pedig fa-thermo nyílászárók.
A földszinten egy tágas előszoba fogad, ahonnan egy vendég WC és egy kis gardrób nyílik. A nappali, konyha és étkező egy légtérben kapott helyet, mégis esztétikailag jól elválasztva, kényelmes terekkel. Ezen a szinten további két hálószoba is található, melyek ideálisak vendégszobának vagy dolgozószobának. A fürdőszoba dupla mosdóval, káddal és zuhanykabinnal felszerelt.
Az emeleten két gyerekszoba került kialakításra, melyek között egy gardrób helyezkedik el. Ezen a szinten egy kényelmes méretű fürdőszoba is található, mely káddal és zuhanyzási lehetőséggel is rendelkezik.

| Jellemző | Érték |
|---|---|
| Település | Üröm |
| Lakópark | Táborföldi lakópark |
| Ingatlan típusa | Önálló családi ház |
| Szobák száma | Nappali + 4 szoba |
| Alapterület | 310 nm |
| Telekméret | 1 166 nm |
| Építés éve | 2006 |
| Stílus | Mediterrán |
| Fűtés / Szigetelés | 38-as porotherm, 10 cm szigetelés |
| Nyílászárók | Fa-thermo |
| Extrák | Duplagarázs |

tags: #urom #taborfoldi #lakopark #becsi #ut
