A lakások kialakulásának története Magyarországon
A Lechner Tudásközpont szakkönyvtárából előkerült újabb érdekesség a magyarországi lakások kialakulásának történetét mutatja be. Mikor és hogyan alakultak ki a nálunk jellegzetesen elterjedt hallos lakások? Miért jó a lakásalaprajzok tipizálása? Ezek mellett sok más érdekes adalékot tudhatunk meg dr. Kotsis Iván írásaiból.
Míg korábban a városok lakásépítési problémáival elsősorban a szociálpolitikai és egészségügyi szakemberek foglalkoztak, az I. világháború után az építészek már saját küldetésüknek érezték, hogy az emberek lakhatási körülményein javítsanak. Az építészeti szaklapok hosszas alaprajzi elemzéseket közöltek, amelyek nem voltak mentesek a kritikai hangvételtől sem.
„Utoljára hagytam Prof. dr. W. Molnár Farkas A bérlakás lakhatóvá tétele c. könyvét, amelyben az építészethez mindenkor hűen, a magyar tervezőket sem kímélve, a lényegre törően mutat rá a problémákra. Az „alaprajzi kretén" Molnár Farkas a magyar tervezőket sem kíméli: „A spekuláció szolgálatába állított építészi lelkiismeret vagy tradíciókhoz ragaszkodó tervezői ügyefogyottság sokszor olyan helyzeteket teremt, hogy a súlyos bérű lakást valamennyire is lakhatóvá tenni, szinte a lehetetlenséggel határos. „Kartársam", akit nem ismerek, talán fel sem ismeri a mellékelt alaprajzi kreténben alkotását." A „kartárs" azonban felismerte a cikkben szereplő munkáját és hasonlóan vitriolos hangnemben válaszolta meg a kritikát a Tér és Forma következő számában. Az építészek közötti hasonló vitára több esetben is sor került.
Cikkek és önálló kiadványok sora foglalkozott a lakásépítéssel.
„A székesfővárosi statisztikai hivatal közismert adataiból kiolvasható, hogy Budapest lakosságának kereken 46%-a egyszobás lakásban, 25%-a kétszobásban, 12%-a háromszobásban és 6 %-a négyszobásban lakik; a fennmaradó 11% a négyszobásnál nagyobb lakásokban oszlik meg. (…) Ezekből az adatokból első rátekintésre megállapítható, hogy a lakáseloszlás a fővárosban alapvetően egészségtelen és miután a vidéki városokban a helyzet egészen hasonló, ez a kedvezőtlen állapot általánosítható az ország egész területére." - hívja fel a figyelmet dr. Kotsis Iván.

A 19. század második felében épült házaknál, mint például a Kovács-Sebestyén háznál (József tér, ma József nádor tér 5-6.), „a hangsúly a nagyméretű szobák reprezentatív sorára helyeztetett, a helyiségek alaprajzi kapcsolatainak ma alig megérthető elhanyagolásával, és az akkori idők műszaki állapotának megfelelőleg a mellékhelyiségek és az egészségügyi berendezések kezdetleges megoldásával. A lakások a vastag külső és középső főfalak közé foglalt két menetbe lettek beosztva, a helyiségeknek, mondhatni, lomha egymásmellé helyezésével, amiből az egymáson keresztül megközelíthető vak szobák, valamint a kicsiny és sötét mellékhelyiségek adódtak." Példaként erre a típusra az V. József tér 5. sz. épület szolgál.
Ezután 1900-tól 1914-ig „a jelzálog-kölcsönök támogatásával tömeges lakástermelés folyt, műszakilag fejlettebb eszközökkel, jobb kivitelben és több higiéniával. Ez a periodus a kétmenetes és függőfolyosós alaprajzi rendszert termelte ki." A polgári lakások jellemzően három szobáját ebédlő, nappali (szalon) és háló céljára bútorozták be, de ez valójában nem felelt meg a használatnak, hiszen gyerekszobák hiányában a funkciókat nem lehetett tisztán érvényre juttatni.
A lakások kialakításánál mindkét időszakban a reprezentativitás volt a fő szempont.
A keretes beépítés és a hallos lakások
Új fejlemény volt a keretes beépítés elterjedése. A '20-'30-as évektől a zártudvaros, a hátsó szárnyakban kicsi és sötét lakásokat tartalmazó épületeket a hatóságok igyekeztek visszaszorítani. A keretes beépítés ösztönzésére ideiglenes rendkívüli házadómentességi rendeleteket adtak ki, valamint az utcai szárnyra 13-15 méteres beépítési mélységet engedtek meg, hogy a telektulajdonost kárpótolják az alacsonyabb beépítettség miatt elmaradt haszonért.
A keretes beépítés forradalmi javulást hozhatott volna a lakásviszonyokban, azonban a túl nagy beépítési mélység maga után vonta, hogy a lakások középső részein légudvarra szellőztetett mellékhelyiségek és ablaktalan hallok alakuljanak ki. „Kétségtelen, hogy ezzel a beépítéssel a bérháztömbök elrendezése városhigiéniai szempontból sokat javult, de viszont ennek áldozatául esett maga a lakás" - foglalja össze a helyzetet Kotsis.

Amint részletesen kifejti, az ekkor kialakult és közkedveltté vált két szoba hallos lakástípus viszonylag nagy (akár 110 m2-es) alapterülete ellenére sem felel meg gyermekes családoknak. A gyerekek vagy a „hallban lévő pamlagon" alszanak vagy a cselédszobában, ahonnét a személyzet a konyhába szorul. A hallos lakások ennek ellenére népszerűek voltak a kétszárnyú vagy akár négyszárnyú üvegezett ajtóval összekapcsolt hall és nagyszoba elegáns térhatása miatt.
„Ez a reprezentatív törekvés fokozatosan oda vezetett, hogy ma egy középpolgári lakáson végigmenve, az a benyomás támad, főként egy külföldi szemében, hogy nálunk az emberek lakásukat nem saját használatukra, hanem a vendégek számára készítették; abban minden lakószoba alapjában véve egy szalon, amely fogadásra szolgál." - írja Kotsis.
Nyugat-Európában ekkor már racionálisabb, feszesebb, a funkciókat és az ennek megfelelő bútorozást sokkal jobban figyelembe vevő alaprajzokat terveztek. Kotsis két német példát mutat be. Ezek mai szemmel is teljesen jól működő alaprajzok, az egyikük - meglepő módon - különösen korszerű. Kotsis a könyvében több saját tervezésű, a német gyakorlatot mintaként kezelő, de a hazai viszonyokat is figyelembe vevő alaprajzot ismertet.
A tipizálás fontossága és a kiskeresetű családok lakásai
Hangsúlyozza azonban, hogy ezt a kérdést „az építészek egymagukban nem tudják megoldani, csak abban az esetben, ha ebben maguk a lakók is segítségünkre jönnek. Mindaddig, amíg a lakók a lakásukban elsősorban reprezentálni akarnak, addig az anyagi okokból megállapított kb."
A középosztály lakhatási körülményei után Kotsis a szegényebb rétegek lakásait vizsgálja meg. Az általánosan elterjedt egyszoba-konyhás típust tarthatatlannak ítéli „egészségi és erkölcsi szempontból egyaránt".
A tipizálás ekkor Nyugat-Európában már jó ideje napirendre került. Kotsis ezt követendő gyakorlatnak ítélte, mind a részletek (ajtók, ablakok, korlátok, lépcsők, faszerkezetek, tetőszerelvények, stb.), mind a lakásalaprajzok tekintetében.
„Az, hogy lakástípusok egyáltalában előállnak, természetes, mert a lakás oly elem, amelynek egyforma alakjaiból sok szükséges. Nincs annyiféle lakás, ahány család van és sok családnak pontosan ugyanarra a lakástípusra van szüksége. Nem kell tehát szégyenkezni afelett, hogyha egyforma lakásokat nagyobb számban tervezünk; a fő az, hogy ezek a típusok jók legyenek." - írja.

Azzal az ellenvetéssel szemben, miszerint így a lakások, illetve a házak belső és külső képe sablonos lesz, Kotsis több érvet is felhoz. A belsőt tekintve úgy véli, hogy azt végeredményben a berendezés stílusa, hangulata határozza meg. Az épületek külső megjelenésében pedig a korabeli sokféleséget inkább zavarónak látja, mintsem művészinek.
A hálófülkés lakás eszméje és a modernizáció
Az I. világháború után az alaprajzot érintően kétféle változás ment végbe a budapesti bérlakásépítésben. Egyrészt az építkezés radikális megdrágulása miatt csökkentették az egyes helyiségek méretét, anélkül, hogy az alaprajzi rendszer egésze bármiféle módosításon ment volna keresztül.
1934-ben kezdődött meg azoknak az ideiglenes rendkívüli házadómentességi rendeleteknek a kiadása, amelyek a város kijelölt területein utat nyitottak a telkek keretes beépítése előtt. Az engedélyezett legfeljebb 14 méteres beépítési mélységre olyan építészeti megoldás alakult ki, amely az utcai és udvari traktus közé beillesztett harmadik traktus révén tette lehetővé a legnagyobb lakóterület kihasználását. A telek keretes beépítésével ily módon együttjáró három traktusból a középsőbe a hall, illetve a mellékhelyiségek kerültek. Ugyanakkor a lépcsőház beillesztése folytán a ház utcától az udvarig át nem nyúló részeit garzonlakásokkal töltötték ki, amelyeknek megkülönböztető jegye a konyha és a cselédszoba hiánya volt.
Az ily módon kialakuló hallos lakástípus nem jelentett lényegi változást az addigi alaprajzi rendszerhez képest. Miután a házadómentességi rendeletek előírták, hogy a szobák minimális alapterülete 15 négyzetméter kell, hogy legyen, megmaradt a viszonylag nagyméretű, egyforma szobák rendszere. Ez az előírás gyakorlatilag lezárta az utat a korabeli nemzetközi áramlatokhoz illeszkedő alaprajzi kísérletezés előtt, amelynek egyik kulcsát éppen a szobaméretek csökkentése, illetve variálása jelentette, a lakás térfelosztását a háztartásszerkezetnek, a családtagok számának függvényeként kezelő gondolkodásmód alapján. A keretes beépítéssel megjelenő új alaprajzi típusként a hallos lakás azonban nem jelentett átlépést ebbe a gondolkodásmódba. Csak formai szempontból hozott változást az alaprajzi kínálat terén, a lakhatással kapcsolatos gondolkodás alapstruktúráját, a szemléletet nem alakította át.
A hallos lakás, mint alaprajzi újítás kialakulását és elterjedését nem előzte meg építészeti vita. Az új építészet hívei a garzonban és a hallos lakástípusban az alaprajzi megújulás hiányát és a lakhatási formák káros, rossz irányú alakulását látták. Kotsis Iván az 1940-es évek elején így összegezte ezzel kapcsolatos álláspontját: „Összefoglalva a mondottakat, megállapítható, hogy a már az első világháború után eleve helytelen alapon megindított budapesti bérlakás típus a jelenlegi egészségtelen viszonyok között oly mértékben leromlott, hogy az nemcsak, hogy fejlődésképesnek nem tekinthető, de az sem kívánatos, hogy jelen alakjában folytatódjék, illetve megmaradjon; elérkezett az ideje tehát, hogy foglalkozzunk annak megjavításával.”
A hall elleni építészi támadás érvkészletének további állandó elemét a hall sötét, szellőzetlen és átjáró jellegénél fogva bútorozhatatlan volta képezte. Nem egy építész az elítélt és elutasított alkóv újjáéledését látta benne: „Az úgynevezett hall, amiért egy szobára eső bér felét kérik, nem más, mint a régi alkóv, csak még kellemetlenebb elhelyezésű, mert átjárás van rajta." Súlyos problémának látták, hogy a hall egy szobányi területet foglal el a lakásban, miközben messze nem használható teljes értékű szobaként. A hallos lakást Kotsis Iván ezen az alapon „eltorzult lakáshasználatnak” minősítette.
A hallos lakástípussal ellentétben, ami a lakás és a háztartásszerkezet megfeleltetésére épülő alaprajzi gondolkodástól függetlenül alakult ki, és azzal minden tekintetben összeegyeztethetetlen volt, a garzon, mint modern lakástípus, kimondottan a modern lakhatási elveknek megfelelően egy élet-, illetve háztartásszerkezeti formához, az egyszemélyes háztartáshoz kitalálva jelent meg a lakáskínálatban.

A budapesti lakáspiac keretei között azonban ez a lakástípus is sajátos ellentmondásos helyzetbe került. A fővárosi lakásviszonyok anomáliái miatt ugyanis részben a legolcsóbb sávba eső újépítésű, korszerű lakásként kezdték használni, nemcsak az egyszemélyes háztartások.
A két világháború között ezzel szemben egy egészen más logika szerint szerveződő alaprajzi rendszert kezdett el az építészek egy része propagálni: a nagyobb méretű nappali szoba plusz kisebb hálószobák (hálófülkék) rendszerét. A hálófülkés lakás, mint követendő ideál, az 1920-as évek végétől a II. világháború éveiig folyamatosan témája volt a lakásépítéssel, lakhatással foglalkozó írásoknak. A lakáson belüli tér felosztásának ezen rendszere mellett felsorakoztatott érvek részben a „lakásnyomor” 19. század utolsó évtizedeitől kezdve folyamatosan létező toposzaira támaszkodtak: a lakásreform-mozgalomnak a higiéniára és az erkölcsre alapozott érveire. Propagálói a túlzsúfolt lakások, mint a testi és erkölcsi betegségek - járványok, tüdőbaj és nemi züllés - fészkei ellenében a szülők és gyerekek hálóhelyének elválasztását, a gyerekek nemek szerinti elkülönítését, illetve a nappali tartózkodási hely és a hálóhely elválasztását sürgették a nagyobb nappali szoba és a kisméretű hálószobák, illetve hálófülkék rendszerében jelölve meg az ennek megfelelő lakáson belüli térfelosztást.
A hálófülkés lakás ugyanakkor ezen az érvkészleten túlmenően egy megváltozó emberképpel is társult. Alapját az autonóm ember eszménye, illetve a „modern emberekből” álló tömegtársadalom elgondolása képezte, ahol az egyén számára biztosítani kell a családon és a lakáson belüli elkülönült tevékenység lehetőségét.
„Az igazi jó alaprajz, amire törekedni kell, minden egyes felnőtt személynek külön szobát, visszavonulási lehetőséget nyújt, ha egyedül akar lenni, és ha vendége jön, ha akarja, tudja külön is fogadni és nem kell az egész házat mozgósítani. Egy ilyen rendeltetésű szobához 8-10 m2 elegendő.” (Vándor Miklós: Kis családiházakról. Tér és Forma, 1937, 11, 330.) Ehhez az elvhez képest az erkölcsi és egészségügyi megfontolások másodlagos szempontként jelentek csak meg: „Ezért minden lakás magja egy tágas életteret biztosító lakószoba, amelyhez a mi felfogásunk és megszokásunk szerint kis hálószobák sora csatlakozik. De a nyugati építészek ezzel egy erős és ösztönös emberi szükségletet szolgálnak: a családtagoknak legyen megadva a mód arra, hogy a pihenéshez és a szellemi munkához kiki a maga bármilyen kicsi szobájában izolálhassa magát. Ezenfelül úgy morális, mint higiéniai szempontokból is szükség van a külön hálószobákra.” (A zürichi Werkbundsiedlung. Tér és Forma, 1929, 8, 304.) Hazai hívei normaként fogalmazták meg, hogy a családtagoknak meglegyen „a maga külön szobája, melyben zavartalanul alhat, dolgozhat, pihenhet” (Botha József: A korszerű családiház-építésről mit kell tudnia az építtetőnek és az építőnek? Budapest, 1932. 259-260.)
„Egyetlen nagy közös lakószoba mellett inkább sok külön kis háló, illetve egyúttal dolgozószobára törekedjünk, hogy mindenki számára, nemcsak a felnőttek, hanem a fiú- és leánygyermekek számára is megadassék az elkülönülés lehetősége. Mert ez a legelemibb életfeltétele a jól működő családi organizmusnak. A személyiségérzés, amit minden családtag átvihet a saját szobájába, annak bútorozásába.” (Barátosi-Szabó Ferenc: Családiház és kislakásproblémák.)
Az „elkülönülés” által biztosított „személyiségérzés” megfogalmazása egyértelműen elárulta, hogy a hálófülkés lakás propagálásában nem egyszerűen csak a 19. század vége óta kontinuus higiéniai és erkölcsi követelményekről, az elkülönített légterű hálóhelyekről vagy a külön gyerekszobáról volt szó, hanem az egyénnek a családdal azonosított lakáson belül biztosított személyes, autonóm teréről, a családon belüli elkülönülés lehetőségéről, vagyis egy megváltozó ember- és családeszményről: „Amint látjuk a hálófülkék nagysága alatta marad a nálunk szokásos szobaméretnek, ellenben lehetőséget nyújt az egyénnek, hogy visszavonulhasson, ha ennek szükségét érzi. A napi munka fáradalmaiban felgyűlt agresszióit zavartalan pihenéssel vezethesse le, ne pedig a család többi tagjain keresztül, a kényszerű együttélés folytán.” (Fischer József: Lakást emberi méretre. Tér és Forma, 1944, 2, 30.)
A régi lakások térfelosztása és a korszerű lakás alaprajzi megoldása a családon belüli érintkezés, kommunikáció átalakulását hordozta magában, illetve generálta azt: „A polgári lakás, a régimódi beosztásával, melynél minden szoba átjáró ház, ahol állandóan zavarják és nyugtalanítják egymást a családtagok és a személyzet, szintén nem alkalmas a csendes visszavonulás számára.”
A hálófülkés lakás hazai gyakorlatban ismeretlen térszervezési módja radikálisan megkérdőjelezte a lakhatás fennálló normarendszerét, amely a szobaszám és a társadalmi státus megfeleltetésén alapult. A hálófülkés rendszer a lakásnagyságot a hierarchikus logika helyett a társadalmi státustól független tényezővel, a háztartásszerkezettel állította kapcsolatba, s propagálói kifejezetten kritizálták azt a gondolkodásmódot, amely a lakás szobaszámát a társadalmi státus függvényeként kezelte. Ehelyett a lakás megfelelőnek tekintett nagyságát a hálószobák, illetve hálófülkék és a családtagok számának és nem szerinti megoszlásának összefüggése adta ki.
Mivel a lakáson belül az egy egyénhez tartozó elkülönített egység nem a szobát, hanem az annál kisebb, szokatlan méretű hálószobát, hálófülkét jelentette, így a lakást nem is szobaszám alapján mérték, hanem az egyénre jutó helyek száma alapján definiálták: az ágyak, vagy a hálófülkék száma szerint. Az „elv az legyen, hogy a helyiségek száma, a lakás nagysága az ágyak számából adódjék” (Forgó Pál: Sorház, bérház, családi ház? (II.) Tér és Forma, 1929, 8, 325.) - mondták a hálófülkés lakás hívei.
Ebben a szemléletben, ahol a lakhatást a háztartásszerkezet határozta meg és ennek megfelelően a lakást az ágyak számával definiálták, a lakások bevett kategorizálása is értelmét vesztette. A Tér és Forma Preisich Gábor és Oblath György 1933-as erzsébetvárosi pályatervét ismertető cikke például hangsúlyozta, hogy „miután ma luxuslakásokra Budapesten igény nincs és nem is várható, hogy luxuslakást kívánók bérházba fognak költözni (villanegyedeink bő lakáslehetőséget nyújtanak nekik), a többszobás lakást sem mint luxuslakást, hanem mint nagyobb lélekszámú család lakását fogtuk fel és sikerült a bért is ennek megfelelőleg megállapítanunk.”
A hálófülkés lakástípus melletti érveléseknek visszatérő eleme volt az alapterület-számítás, annak alátámasztásaként, hogy a hálófülkés rendszerrel ugyanakkora család számára kisebb alapterületű lakás is megfelelő lenne. A Tér és Forma német Werkbund által 1929-ben épített zürichi telepet bemutató cikke a lakástípusok leírásában kitért a méretbeli megfeleltetésre is.

Kotsis Iván szintén egy német bérlakástípussal végzett összehasonlító számítást, amely kisebb alapterületen, 85 m2-es képes nappali-ebédlő és három hálószoba felosztásban egy család életét biztosítani, szemben a budapesti 110 m2-es kétszoba-hallos lakással, mint kevésbé gazdaságos alaprajzi típussal.
Emellett az általa is megszüntetendőnek ítélt egyszoba-konyhás lakástípus helyett (57 m2) az alapterületét tekintve alig nagyobb (60 és 68 m2-rel számol), de helyes alaprajzi elrendezésű lakókonyhás-hálófülkés lakás mellett foglal állást.
A háztartásszerkezeten alapuló lakhatás rendszerét Kotsis Iván összegezte a műegyetemi építészképzés tananyagaként. Az életciklusokhoz kötött lakásmobilitási modelljében a fiatal házasokhoz az olcsóbérű, könnyen ellátható kislakást, a gyerekes családokhoz a nagyobb lakásokat, az idős házaspárokhoz pedig megint csak a kislakásokat kapcsolta, szemben azzal a budapesti gyakorlattal, amely az albérlőtartás rendszerét termelte újra.
Meglátása szerint ugyanis a fiatal, még gyermektelen házasok az olcsó kislakások lakáspiaci hiánya miatt albérletben kénytelenek élni, s az idős, már gyerekek nélkül élő házasok sem költöznek át kisebb lakásba gyerekeik önállóvá válásával, hanem megmaradnak a nagyobb lakásban, aminek egy részét albérlőknek adják ki. E gyakorlatot elutasítva bevezette az úgynevezett csonka lakás kategóriáját, ami alá az egy- vagy kétszobás, a mellékhelyiségeknek csak egy részével, vagy azok egy redukált változatával rendelkező lakástípusokat sorolta.
A teljes lakásokkal szemben, amelyekben előszoba, konyha, kamra, cselédszoba, fürdőszoba és wc is van, a csonka lakásokban csak főzőfülke és fürdőszoba (wc-vel) vagy zuhanyzófülke található, cselédszoba és kamra egyáltalán nincs. Ezek a lakások Kotsis szerint a fiatal vagy idős gyermektelen házaspároknak, az egyedülállóknak, gyermektelen, dolgozó házaspároknak megfelelőek, illetve nem állandó lakás céljára is alkalmasak. Véleménye szerint ezek azok a lakások, amelyek az egyéb lakáspiaci lehetőség híján albérletben élők szükségletét elégíthetik ki.
A csonka lakásoktól ugyanakkor még további két, szintén sajátos háztartási formával jellemezhető kategóriát is megkülönböztetett Kotsis. Egyrészt a garzonlakást, amely szerinte még a csonka lakásnál is kevesebb mellékhelyiséget tartalmaz, mert csak egyetlen szobából, valamint előszobából és fürdőszobából (benne wc-vel) áll (Kotsis Iván ebben a formában szűkebben határozta meg a garzonlakás kategóriáját, mint ami a korban bevett volt). Másrészt a boardinghouse-rendszert, amely közös háztartási szolgáltatásokkal összekötött garzonlakás-kínálatával átmenetet képezett a szálloda felé, attól eltérően azonban állandó lakásként szolgál.
A garzonlakás építészeti kereteit a modern építészetnek a fejleszthető, növelhető házról alkotott elgondolásai szerint értelmezte. Eszerint a lakásnak, illetve a lakáskínálatnak követnie kell a családok és a háztartások változékonyságát, immáron nem a családot, hanem akár az egyént tekintve a legkisebb, önálló térben elhelyezendő egységnek.
Mivel a keretes beépítéssel elterjedő új alaprajzi elrendezésű házakban a garzonokat a teljes lakások között helyezték el, Kotsis ezzel a jellegzetes elhelyezéssel kapcsolatban a háztartások változó igényeit követve az egymás melletti lakások összekapcsolhatóságára hívta fel az építész-hallgatók figyelmét: „A teljes lakások közé helyezett garszonlakás alkalmas arra, hogy a szomszéd lakáshoz hozzá legyen kapcsolva, amiáltal sokszor szerencsés beosztású és jól használható lakás-alakzatok keletkeznek. Így pl. a teljes lakás mellett álló garszonlakás különbejáratú iroda, vagy orvosi rendelő részére használható, amely utóbbi esetben előny, hogy külön fürdőszoba van a rendelő mellett. Avagy hozzávéve a szomszéd lakáshoz, kiadódik egy olyan lakásegyüttes, amelyet, két bejárata és két fürdőszobája folytán jól lehet használni nagyobb taglétszámú, vagy felnőtt gyermekeket tartalmazó családok esetében.” (Kotsis Iván: Lakóépületek tervezése. Kézirat gyanánt. Budapest, 1944.)
A társasház mint jogi és építészeti egység
A társasház az ingatlantulajdon, ezen belül a közös tulajdonban álló ingatlan különleges formája. Olyan jogi megoldás, mely lehetőséget ad arra, hogy a tulajdon egyrészt egységes tulajdonként jelenjen meg a hatóságok felé, másrészt az egyes társasházi öröklakások (helyiségek) a tulajdonosok kizárólagos tulajdonába kerülhessenek.
A földterület, melyen a társasház áll, az épület szerkezeti elemei közös tulajdonban állnak. A közös tulajdont a társasház ingatlan-nyilvántartási törzslapján tüntetik fel. Az egyes tulajdonostársak kizárólagos tulajdonában álló lakásokat (helyiségeket) pedig az ingatlan-nyilvántartási különlapon tüntetik fel.
A társasház iránti igényt a modern városi élet hozta létre. A kereskedelmi és ipari tevékenység központjaiba tódult a vidék mezőgazdasági foglalkozású népessége. A város azonban mint fizikai hely is más mint a vidék. Itt már nem a természet, hanem az ember környezetalakító munkája határoz meg mindent. Nincs elég hely a családi házak számára. A városi élet jellemző tevékenységei a helyhiánytól függetlenül is egyfajta sűrűsödést igényelnek.
Az ily módon tömegessé váló lakáshiányt a nagytőke hatalmas bérházak megépítésével próbálta kielégíteni. Közép-Európa és persze Magyarország főutcája, az Andrássy út jellegzetes példája ennek a folyamatnak. A Király utca családi tulajdonban álló és családok által is használt épületei helyett az Andrássy út már a magyar nagytőke befektetési terepe volt kialakítása idején. A nagytőke - a társadalmi, állami ellensúlyt képező Fővárosi Közmunkák Tanácsával karöltve - hatalmas bérházakat épített, melyeket a nagypolgárság és a középosztály foglalt el.
A sűrű városszövet, a bérkaszárnyák bérlőjének ideiglenes kötődése bérleményéhez a középosztály befektetésének ingatlan tulajdon felé irányítása az I. világháborút követően az új jogi konstrukció megalkotását indokolta. A társasháztulajdon jogi formáját Magyarországon az 1924. május 10-én kihirdetett 1924 évi XII. törvénycikk hozta létre.

Az 1930-as években elsősorban a középosztály kezdett társasház építésbe, először Budapesten, a Lágymányos illetve a Szent Imre város (ma XI. kerület) területén. A Horthy Miklós út (ma Bartók Béla út) környezetében gombamód szaporodtak a házak, melyekbe főleg állami hivatalnokok, tehetősebb polgárok költöztek. A Magyarországtól elcsatolt területek menekülő értelmisége, polgársága is ezeken a területeken próbált tulajdont szerezni - ha tehette.
Ugyancsak jellegzetes társasházasítási időszak az 1990-es évek közepe, a budapesti ingatlanállomány privatizálásának időszaka. Az Antall-kormány politikájának gerince a polgári jogállam intézményeinek hangsúlyos kiépítése mellett a magyar középosztály létrejöttének, helyreállításának támogatása volt. Ennek a politikának jellegzetes lépése volt annak lehetővé tétele, hogy a lakásbérlők az általuk bérelt lakásokat megvásárolhassák.
Egy adott telken tulajdonosai (tulajdonosa) jogerős építési engedély birtokában többlakásos házat is építhetnek, azzal a szándékkal, hogy felépülte után társasházzá alakítják az ingatlant. Ez a folyamat többlépcsős hatósági eljárások lefolytatását teszi szükségessé.
A társasház alapító okiratában rendelkezni kell az egyes külön ingatlantulajdonokról valamint az azokhoz a közös tulajdonból tartozó eszmei tulajdoni hányadokról is. A gyakorlat szerint az egyes külön ingatlantulajdonokhoz tartozó közös tulajdonból illető eszmei hányadot arányosítással kell meghatározni.
Társasház jogi kérdései - Dr. Simon Tibor ügyvéd
A kialakítandó társasház felépítménye (a ház, felépítmény) egyes tulajdonosai által kizárólagosan használt lakás, illetve nem lakás céljára szolgáló hasznos területet össze kell adni.
Az alapító okirat elfogadásával és földhivatali átvezetésével valamennyi újonnan kialakított, ingatlan-nyilvántartási különlapon feltüntetett tulajdon részére új közigazgatási címet kell adni. Az ingatlan korábban egységes közigazgatási címe helyett valamennyi társasházi külön tulajdon saját közigazgatási címet kap.
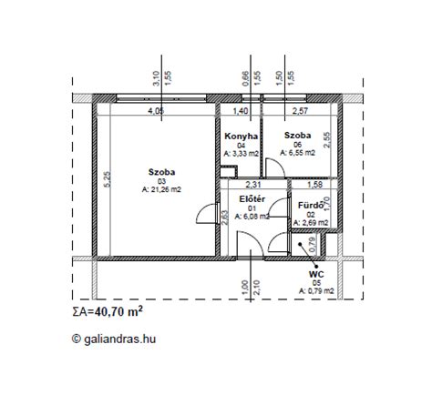
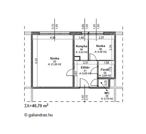
A társasház-alapító okirat melléklete az alaprajz. Az alaprajz 1:100 méretarányban kell készüljön, amit fel is kell tüntetni rajta. Az alaprajz oldalán fel kell tüntetni az egyes lakásokra vonatkozó területszámítást.
Meg kell jelölni az alaprajz elnevezését valamint az alaprajz hasonló alaprajzoktól történő megkülönböztetésére alkalmas adatokat (pl. készítésének ideje, munkaszám).
Újonnan épült társasházi épület esetében lehetőség van arra - amennyiben az épület az építési engedélyben foglaltakkal egyezően épült fel - hogy a tulajdonosok alaprajzként a záradékolt építési engedélyezési tervet (megfelelően kiegészítve) használják fel.
Egy társasház lehet ikerházban is és nincs akadálya annak sem, hogy a társasházi ingatlan telkének a használatát is megosszák egymás között a tulajdonosok. Minimum két - társasházi külön tulajdonként elkülöníthető - lakás esetén már lehetséges társasházat alapítani.

Műszaki szempontból ikerház az ingatlan oldalhatárán - vagy az ingatlan belső, használat szempontjából megállapodással előírt határán - álló, egymástól független épületszerkezetekkel és vezetékekkel megvalósított, nyílás nélküli tűzfalakkal csatlakozó két olyan önálló épület, amely külsőleg egy épület képét mutatja.
tags: #a #lakas #lakoza #tortenete
